Because of CK, I have had the wonderful opportunity to work with his company, Integrity Construction, to help share my ideas for their newest house flipping project. Here are some before photos so you can see what we are working with…
Kitchen (featuring a guest appearance from my fab purple Kate Spade bag):
Living Room:
Bathroom:
I am focusing on the kitchen first, so here are some of the inspiration photos that I am using!
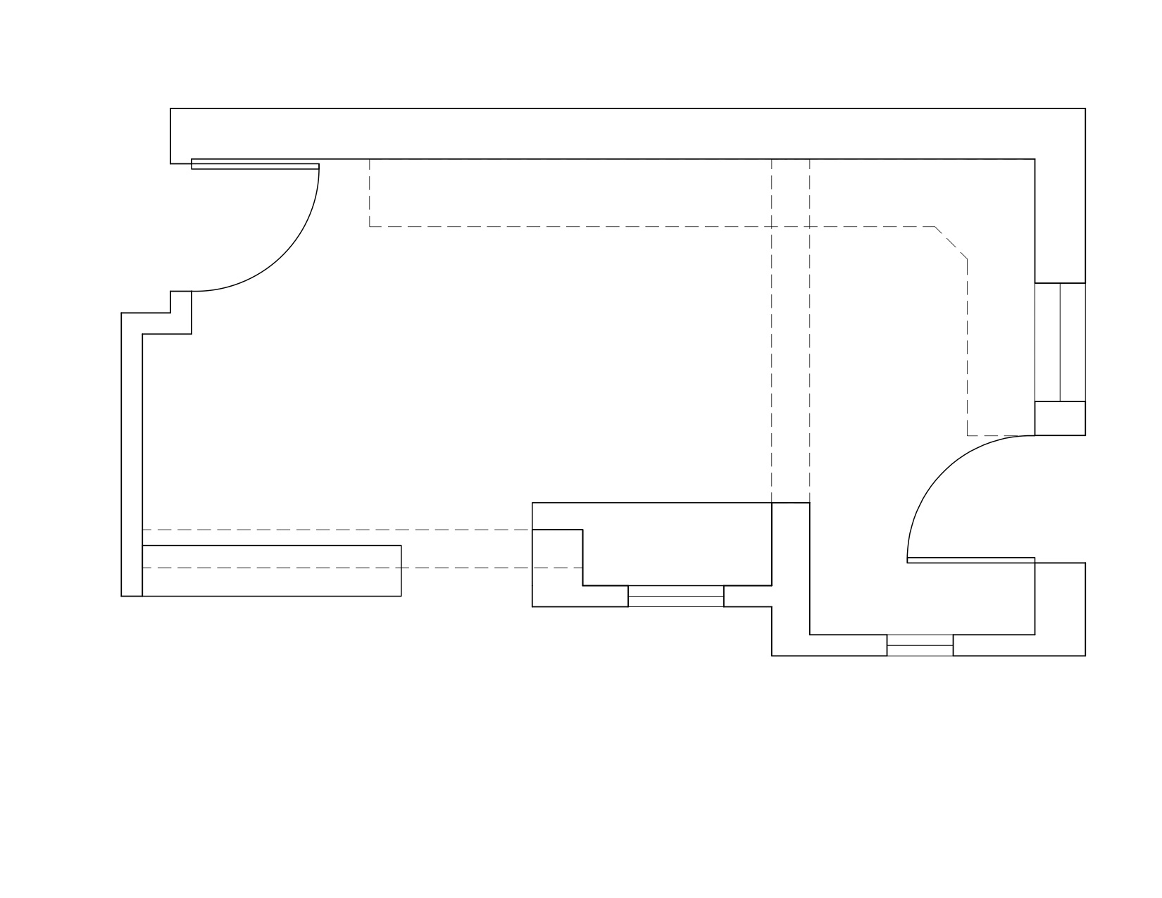
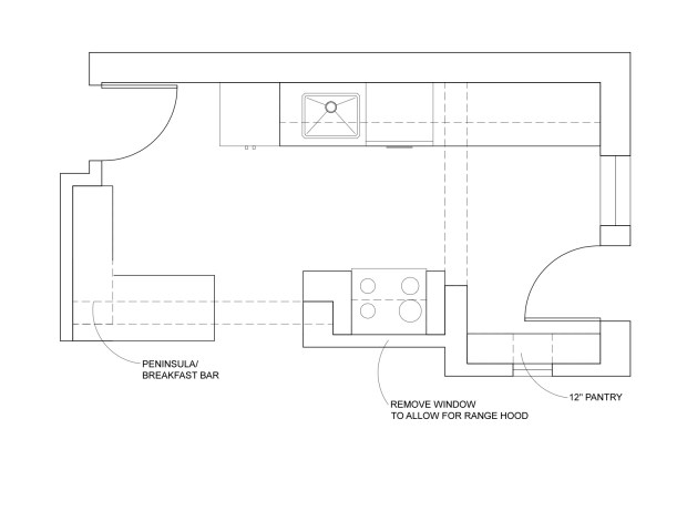
The kitchen is long and rectangular and feels like there are 3 separate “zones”. I wanted to create a more cohesive kitchen, so here is how I changed the plans:
I can’t wait to post more photos of the During and After to show you the amazing transformation!
#strongfoundation











2 thoughts on “Building with Integrity”